Продається 1-кімн. квартира

  • $53,700
Варненська, 29, Одеса, Україна
  • 212400
  • Ідентифікатор ресурсу
  • Квартири
  • Тип нерухомості
  • 1
  • Спальня
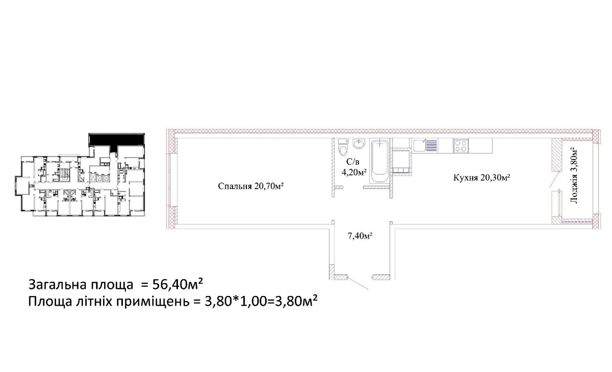
  • 56.4
  • 23
  • Поверх
  • 24
  • Кількість поверхів
Продаж
Продається 1-кімн. квартира
Варненська, 29, Одеса, Україна
  • $53,700

Особливості

Подробиці

Оновлено на 23 Квітня, 2026 при 4:01 pm
  • Ідентифікатор ресурсу: 212400
  • Ціна: $53,700
  • Розмір нерухомості, м²: 56.4
  • Спальня: 1
  • Тип нерухомості: Квартири
  • Статус майна: Продаж
  • Балкон / Лоджия: Tak
  • Кухня площа, м²: 20.3
  • Жила площа, м²: 207
  • Поверх: 23
  • Кількість поверхів: 24
  • Комплекс: Скай Сіті

Опис

На продажу неймовірна 1-кімнатна квартира площею 56,4 м² у житловому комплексі “Скай Сіті”! Розташована на 23/24 поверхах, ця двостороння квартира відкриває безмежні можливості для трансформації у простору 2-кімнатну. Вона в ідеальному стані від забудовника, готова до вашого облаштування та створення затишного домашнього простору.

Вражаючий вид на місто, який щодня надихатиме вас на нові звершення! У ЖК “Скай Сіті” завжди працює генератор, тож ви не відчуєте жодних незручностей навіть у разі перебоїв з електропостачанням.

Зручне розташування та район з розвиненою інфраструктурою, що забезпечить вам комфортне життя. Усі необхідні магазини, кафе, школи та транспортні розв’язки знаходяться під рукою.

Не впустіть свій шанс на це вигідне придбання! Переуступка.

  • Місто Хаджибейський р-н
  • State/county Одеса

Схожі оголошення

Compare listings

Порівняйте
Констанжи Валентин Володимирович
  • Констанжи Валентин Володимирович