Продається 3-кімн. квартира

  • $73,000
Прохоровська, 40, Одеса, Україна
  • 210546
  • Ідентифікатор ресурсу
  • Квартири
  • Тип нерухомості
  • 3
  • Спальні
  • 97
  • 13
  • Поверх
  • 20
  • Кількість поверхів
Продаж
Продається 3-кімн. квартира
Прохоровська, 40, Одеса, Україна
  • $73,000

Особливості

Подробиці

Оновлено на 3 Березня, 2026 при 4:48 pm
  • Ідентифікатор ресурсу: 210546
  • Ціна: $73,000
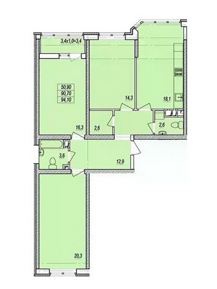
  • Розмір нерухомості, м²: 97
  • Спальні: 3
  • Тип нерухомості: Квартири
  • Статус майна: Продаж
  • Балкон / Лоджия: Tak
  • Поверх: 13
  • Кількість поверхів: 20

Опис

Вигідна пропозиція! Продається трикімнатна квартира в новому, зданому будинку від СК “Стікон”,
ЖК “Прохоровський квартал” – затишний та комфортний міні-квартал в історичній частині міста, лише 10 хвилин до центру.
Найдосконаліше планування за розташуванням та площею.
Стан від забудовників.
Район із розвинутою інфраструктурою: школи, дитячі садки, поліклініки, магазини, салони краси, фітнес-клуби тощо.
Два зелених сквери поруч: Прохоровський та Михайлівський.
Зони відпочинку та прогулянкові алеї.
Авторський дизайн громадських зон.
Власна управляюча компанія.
Закрита охоронювана територія.
Чудовий варіант! Обов’язково телефонуйте! Є квартири в розстрочку та під програми!

  • Місто Приморський р-н
  • State/county Одеса

Схожі оголошення

Compare listings

Порівняйте
Логвінова Ольга Олександрівна
  • Логвінова Ольга Олександрівна